Local comercial en venta

Madrid, Puente De Vallecas
169.000 €
1 dormitorio 1 dormitorio
67 m2 67 m2

Local comercial en venta

Madrid, Puente De Vallecas

Descripción anuncio

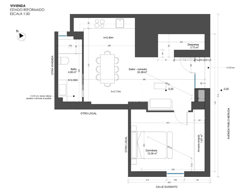
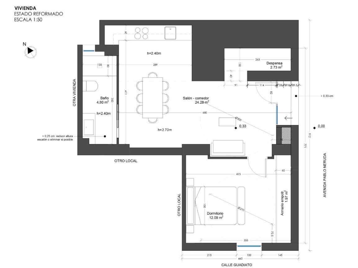
PISO DE UN DORMITORIO TOTALMENTE REFORMADO EN PLANTA BAJA

Vivienda a estrenar, resultado de una reforma integral con cambio de uso de local a vivienda, actualmente en fase final, pendiente de inscripción registral en el registro de la Propiedad.

La vivienda ha sido completamente reformada y esta formada por amplio salón comedor con cocina americana, 1 dormitorio muy amplio con armario y cuarto de baño con plato de ducha.

Cuenta con puerta de entrada blindada, puertas interiores lacadas en blanco, suelos de tarima flotante, ventanas climalit de alta resistencia, bomba de aire acondicionado frio/calor en salón y dormitorio, etc.

El inmueble se entrega con cocina equipada tal como se muestra en las imágenes. El resto de la casa sin amueblar.

Zona muy bien comunicada con todos los comercios y servicios en la zona, autobuses y metro línea 1 (Alto del Arenal) prácticamente en la puerta, fácil acceso a la M-30, M-40, Avenida de la Albufera, Avenida Buenos Aires, Avenida Pablo Neruda y calles aledañas.

'TECNOCASA, FINANCIAMOS HASTA EL 100% SEGÚN PERFIL DEL COMPRADOR A TRAVÉS DE NUESTRO DEPARTAMENTO FINANCIERO KIRON.

Ver más

Características

Ref.:
649840
Libre:
Tipo de inmueble:
Popular
Año de construcción:
1975
Ver más
Precio Precio
169.000 €
Cuota mensual Cuota mensual
€ 544 / mes

Clase energética

Este inmueble está esperando clase energética
Año de construcción:
1975

Servicios cercanos

Transporte público Transporte público
Alto del Arenal
Alto del Arenal
250 m
Miguel Hernández
Miguel Hernández
450 m
El Pozo
El Pozo
1,6 Km
Vallecas
Vallecas
1,9 Km
Av. Pablo Neruda - Luis Buñuel
Av. Pablo Neruda - Luis Buñuel
60 m
Colegios Colegios
Colegio Público Agustina Díez
150 m
Colegio Público Concha Espina
190 m
Colegio Público Santo Domingo
460 m
UFIL Tierruca
480 m
Colegio Público San Pablo
550 m
Farmacias Farmacias
Farmacia - Avenida Pablo Neruda 48
110 m
Farmacia - Calle Guillermo Pingarrón 17
140 m
Farmacia - Calle Gerardo Diego 4
240 m
Farmacia - Avenida Pablo Neruda 38
280 m
Farmacia - Calle Diego Manchado 52
290 m
Hospitales Hospitales
Hospital Virgen de la Torre
2,4 Km
Hospital Universitario Infanta Leonor
2,4 Km
Supermercados Supermercados
Ahorramás
380 m
Dia
450 m
Galería de alimentación Fuengirola
520 m
Alcampo
980 m
Mercadona
990 m
Tiendas Tiendas
Frutas y verduras Jesús y Resu
190 m
Alimentación
490 m
Panadería pastelería Robert's
690 m
Barón Briguetón
990 m
Tiendas
1,1 Km
Bar Bar
Cervecería la Avenida
370 m
M-40
800 m
Cafetería
1,0 Km
Terraza El Rocio
1,1 Km
De tó la vida
1,2 Km
restaurantes restaurantes
O Couto
600 m
Riojano
630 m
Los Amigos
710 m
Boanerges
730 m
Mesón Puerto de Foncebadón
1,2 Km
Ver más

Calcula tu hipoteca

Simple y sin compromiso
Entrada
%
al mes
Hipoteca
%
El resultado de esta simulación es orientativo. Los datos indicados no corresponden a condiciones reales de productos y no implican compromiso, obligación o vínculo jurídico-legal para el Grupo Tecnocasa.

Solicita un asesoramiento

Introduce tus datos
GRACIAS POR CONTACTAR CON NOSOTROS.
Esta oficina de Kìron se pondrá en contacto contigo lo antes posible para ofrecerte un asesoramiento financiero más completo y acorde a la información que nos has facilitado.
Franquiciado
Oficina Alto Del Arenal Slu
Calle Pedro Laborde, 43 28018 Madrid (M)
Calle Pedro Laborde, 43 28018 Madrid (M) Zona: ALTO DEL ARENAL - BUENOS AIRES

Nuestro equipo


  • Iván Fernández
    Responsable

  • Yaniel Crespo
    Franquiciado
Franquiciado
Oficina Alto Del Arenal Slu
Calle Pedro Laborde, 43 28018 Madrid (M)

Franquiciado
Oficina Alto Del Arenal Slu
Franquiciado
Oficina Alto Del Arenal Slu

2026 Ibero Group Tecnocasa Services, S.L.U. - CIF B-65870776 - C/ Pallars, nº 1-3 Parque de Negocios Mas Blau II, 08820, El Prat de Llobregat (Barcelona-España). Red en franquicia - Cada sociedad franquiciada tiene su propio titular y es independiente del franquiciador.

Política de privacidad | Aviso legal | Pólitica de las Cookies | Información al consumidor | | Canal ético